LES REGLES D AMENAGEMENT D UNE PHARMACIE
Bien aménager une pharmacie : règles, conseils et évolutions du métier La pharmacie n’est plus uniquement un lieu de délivrance de médicaments. Elle est devenue un espace de santé, de
Bien aménager une pharmacie : règles, conseils et évolutions du métier La pharmacie n’est plus uniquement un lieu de délivrance de médicaments. Elle est devenue un espace de santé, de
Optimiser les espaces aveugles Il n’est pas rare de trouver dans l’agencement de bureaux tertiaires, des salles de réunion dites « aveugles », c’est à dire sans fenêtres. Pourquoi ?

Un public et des attentes variées Les espaces de coworking sont devenus des lieux incontournables pour les freelances, startups et travailleurs hybrides. Leur succès repose sur un aménagement bien pensé,

L’aménagement d’un restaurant est un élément essentiel pour garantir le confort des clients tout en optimisant le travail du personnel. Un bon design peut influencer l’expérience client et maximiser la

Les Normes ERT et ERP L’aménagement des espaces de travail doit répondre à certain nombre de normes et d’articles de loi. Les bureaux professionnels sont appelés ERT : Etablissements Recevant

L’aménagement des bureaux professionnels connaît une transformation profonde, marquée par des changements dans les modes de travail, les attentes des employés et les enjeux environnementaux. Flexibilité, bien-être et durabilité sont

Qu’est ce qu’un ERP ? Les ERP sont des établissements qui reçoivent du public, c’est-à-dire des personnes extérieures avec ou sans rendez vous. Les ERP sont classés en catégories

Intégrer l’Environnement et la RSE pour un Espace professionnel Durable Pourquoi la RSE et l’Environnement sont cruciaux dans l’aménagement des Bureaux ? L’aménagement des bureaux ne se limite plus à

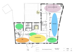
1- Zoning et Macro-Zoning dans l’Aménagement des Bureaux : Définition et Importance Le zoning est une première phase qui va permettre de « dégrossir » l’espace et le diviser en différentes zones

Aménager l’espace (Zoning ) dans le respect dans normes L’agencement spatial de votre restaurant est conditionné par des normes et des règles. Que soit les largeurs de circulation, les sorties

Comment faire évoluer l’Open Space pour répondre aux nouveaux enjeux d’agencement de bureaux L’aménagement de bureaux en open space a évolué au fil des années pour répondre à

L’acoustique est un élément clé dans la qualité de vie au travail En tant qu’architecte spécialisée dans l’aménagement de bureaux, je peux vous dire que l’acoustique est un élément clé

Définition : le space planning c’est quoi ? Le space planning c’est l’art d’aménager des locaux de travail afin d’optimiser les espaces. Cette étude spatiale doit répondre et prendre en

Optimiser l’espace pour valoriser son bien immobilier L’optimisation des espaces est un vrai enjeu immobilier que vous soyez propriétaire de votre bien ou investisseur dans l’immobilier. Pouvoir créer une chambre

Tendances déco : la peinture murale géométrique Exit la couleur unique sur tous les murs. Aujourd’hui, la tendance est à la peinture murale géométrique. Osez créer des formes sur vos

FLex office : une nouvelle façon de travailler La crise sanitaire a donné un coup d’accélérateur dans l’évolution des façons de travailler au sein de l’entreprise. – La généralisation du