professionnels
Copyright : laurenequirosphotographe
Portfolio "Professionnels"
Cliquer sur l’image pour voir le détail des réalisations
Espace PROFESSIONNELS
Vous recherchez un architecte d’intérieur pour vous accompagner dans votre projet ?
Aménagement de bureaux professionnels, pharmacies, restaurants, coworking… Je vous accompagne dans les différentes étapes de votre projet :
-
Phase agencement spatial (space planning) : je vous propose un aménagement intérieur de vos locaux afin d’optimiser l’espace, dans le respect :
- de votre cahier des charges
- des contraintes architecturales du local
- des normes en vigueur à respecter (ERP/ERT, incendie, accessibilité…)
- de votre budget
Je modélise les espaces en 3D pour vous aider à vous projeter dans votre futur projet. - Phase Mise en décoration : à travers des visuels 3D et des planches d’ambiance, je vous conseille sur la mise en décoration de vos locaux : prescriptions de matériaux, mobiliers, luminaires…autant d’éléments pour créer une atmosphère qui vous ressemble. Je travaille en partenariat avec des fournisseurs/fabricants pour vous garantir des prix compétitifs.
- Phase travaux : je travaille en partenariat avec des maitres d'oeuvre travaux. Leur expertise vous permette d'obtenir des devis rapidement tout en garantissant la fiabilité des artisans .
- Dossiers administratifs ERP : l'ouverture d'un établissement Recevant du Public nécessite le dépôt d'un dossier d'autorisation en mairie. Ce dossier est obligatoire quelque soit le type d'activité.
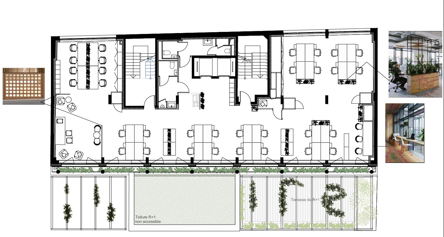
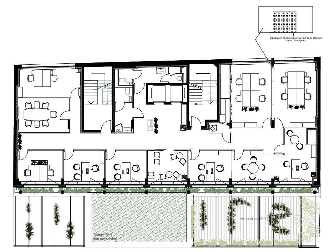
Missions de space planning
Vous êtes :
- Un professionnel de l’immobilier et vous souhaitez mettre en avant le potentiel de votre bien (plateau de bureaux, entrepôt, immeuble à réhabiliter…)
- Un chef d’entreprise avec un projet de déménagement, de restructuration de vos bureaux
Je réalise des prestations de space planning pour vous aider à évaluer le potentiel de vos locaux, à optimiser vos espaces de travail.
Mais qu’est ce que le space planning ?
C’est l’art d’aménager des bureaux afin d’optimiser les espaces. Cette étude d’aménagement spatial doit répondre à plusieurs enjeux pour être pertinente :
- Les besoins de fonctionnement de l’entreprise : comment travaillent vos salariés, quels sont leurs usages, leurs besoins (en fonctionnement, liens entre services …) : c’est le cahier des charges/ programme
- Les contraintes techniques du bâtiment
- Les normes en vigueur à respecter : normes incendie, PSH (Personne en situation de Handicap), normes ERP/ERT….
- Retranscrire l’ADN, la culture d'entreprise dans l'aménagement de vos bureaux
"Construisons ensemble votre projet d’avenir."
Ils nous ont fait confiance ...
Marie Alix, HABITEO
Lire son commentaire >
Les spaces plannings sont toujours de bonne qualité et les délais tenus. Nous sommes très satisfaits du travail réalisé, merci !
Caroline, ELLADA
Lire son commentaire >
Merci à Laurence&Gaëlle, le résultat est magnifique. Elles ont su être à l'écoute de nos attentes et nos souhaits tout en proposant un aménagement original dans l'esprit de notre boutique. Professionnelles, elles ont respecter les délais
Valentine, SENNHEISER
Lire son commentaire >
Réponse de la cliente suite à l'envoi de mon projet d'agencement de ses bureaux :
"J'adore ! C'est top. J'ai envie d'aller travailler dans ces nouveaux bureaux"
Vincent, RESTO STARTER
Lire son commentaire >
Nous avons fait appel à Mme Franco pour un projet de réaménagement des espaces de vente d’un restaurant type « street food »/ vente à emporter.
La proposition est parfaitement en corrélation avec nos attentes.
Matthieu, RESTO STARTER
Lire son commentaire >
Elle a su être à l’écoute et à fait preuve de pragmatisme tant dans le choix des matériaux que dans le choix de l’aménagement.
Nous recommandons ses services sans hésiter
Virginie P, Poly Event
Lire son commentaire >
Laurence nous a accompagnés sur l'ensemble de notre projet d'aménagement de bureaux : démarche créative, réalisation du space design, plans techniques, vues 3D et sourcing mobilier. Réactive et professionnelle, Laurence a parfaitement su répondre à nos attentes et s'adapter à nos contraintes (espace, timing etc.). Nous sommes satisfaits de sa prestation et la recommandons vivement pour tout projet d'aménagement de bureaux.
Manesse C, La Permanence
Lire son commentaire >
Nous sommes ravis du rendu. Merci Laurence pour la qualité de notre collaboration.
Jim A, fb VRD
Lire son commentaire >
Laurence a su se montrer réactive et experte dans son accompagnement pour l'implantation du mobilier de nos nouveaux locaux.
Pleine de ressources, notre projet à pu avancer en toute sérénité, nous avons également pu optimiser le temps de livraison via ses relations avec des fournisseurs de qualité.